118 REMSEN Street 1
Sold

118 REMSEN Street 1

118 REMSEN Street 1, Brooklyn, NY 11201

$7,075,000

A Rare Brownstone Masterpiece in the Heart of Brooklyn

This landmark three-level brownstone home seamlessly blends historic grandeur with modern luxury in one of Brooklyn's most coveted neighborhoods.

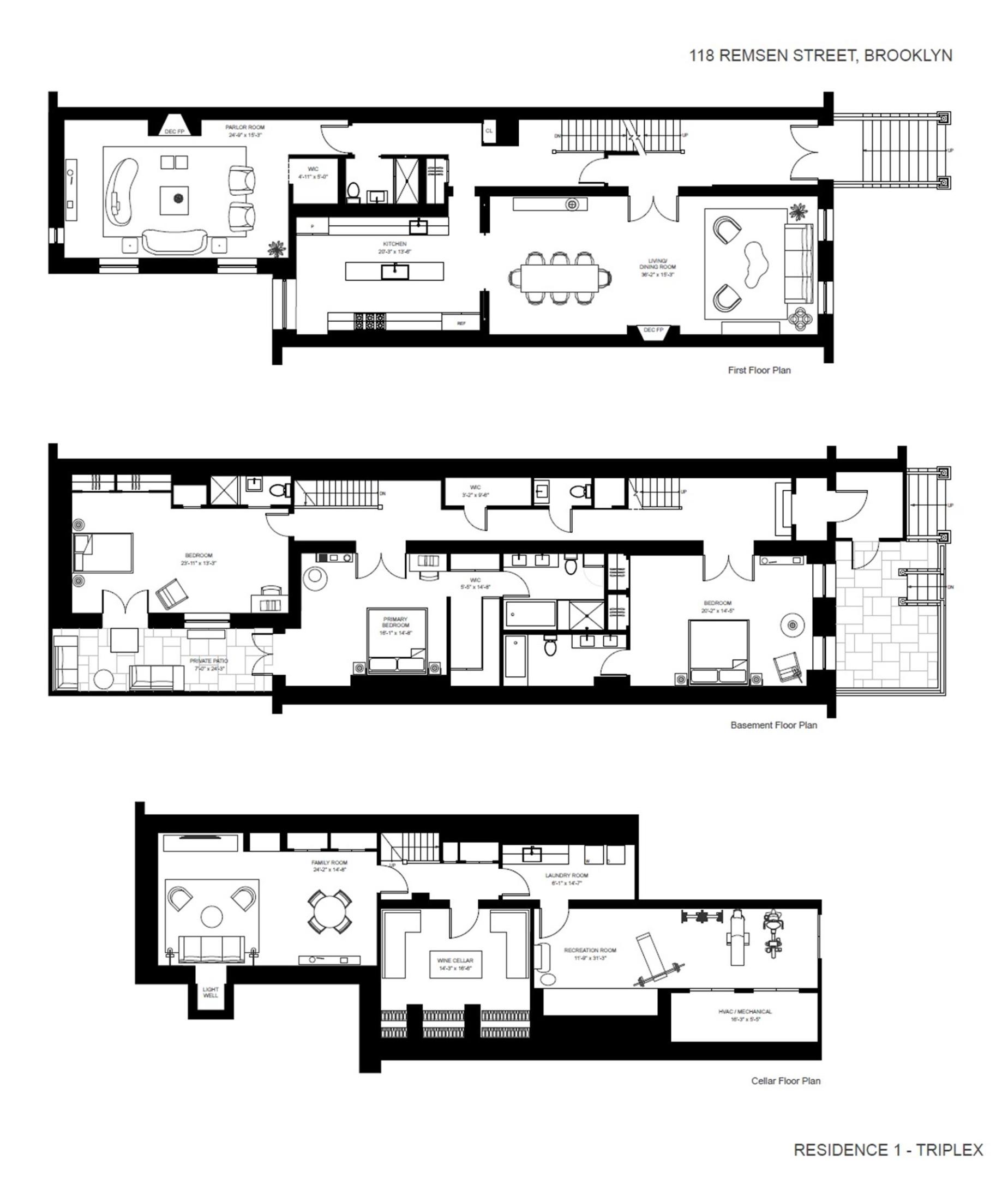
Upon entering the grand parlor, you are immediately captivated by soaring ceilings, oversized windows, and exquisite period details. A striking carved mirror and marble mantle complement the meticulously restored moldings, while arched doorways with etched glass pocket doors and chevron-patterned rift and quartered white oak floors exude timeless elegance. The rear parlor, framed by a second carved mantle fireplace and stunning leaded stained-glass windows, offers serene views of the lush surroundings. A discreetly positioned full bath on this level ensures both convenience and privacy.

The expansive, light-filled kitchen is a chef's dream, outfitted with top-tier appliances, including a Sub-Zero refrigerator and vertical wine storage, a Cove dishwasher, a Wolf integrated coffee system and microwave, and a 48-inch Ilve Majestic range with a custom hood. Grohe fixtures grace the dual sinks, while abundant storage ensures a seamless culinary experience.

On the lower level, three en-suite bedrooms provide a tranquil retreat, offering privacy and access to a secluded flagstone patio through a private entrance.

The lowest level presents a wealth of possibilities, featuring additional living space, an oversized wine cellar, a dedicated laundry room, and ample room for fitness or recreation.

This exceptional residence is a testament to timeless design and modern sophistication-an opportunity not to be missed.

Offering plan is being amended to reflect that this apartment is a 4 bed 4.5 bath.

4
beds

5
baths

5,376 Sq.Ft. LIVING AREA

Doug Bowen

Doug Bowen

Zia O'Hara

Zia O'Hara

Features & Amenities

Interior

  • total bedrooms4
  • Total bathrooms5
  • full bathrooms4
  • half bathroom1
  • Laundry room Building Other, Washer Hookup, In Unit

Area & Lot

  • Status Sold
  • Living Area5,376 Sq.Ft.
  • MLS® IDRLS20010405
  • TypeCondo
  • YEAR BUILT1900
  • Architecture StylesWalk-Up
  • View DescriptionCity

Exterior

  • STORIES4
  • AIR CONDITIONINGCentral Air
  • other exterior FeaturesPrivate Outdoor Space Over 60 Sqft

Financial

  • Sales Price$7,075,000
  • Common Charges $1,610/mo

Follow Us on Instagram

main

#AlwaysBuilding

WorkWith Us


This highly motivated team combines diverse backgrounds and skill sets, allowing for a comprehensive approach to dealmaking and persistent client success.